Заголовок

ЖК Морозовский квартал

Московская обл, Орехово-Зуево го, Орехово-Зуево, Бондаренко ул
от 1.6 млн до 3.2 млн руб.
3 квартал 2017 - 3 квартал 2018
Узнайте условия покупки квартиры от застройщика по телефону:
Продажа от застройщика
Ипотека
Материнский капитал
Рассрочка
Военная ипотека
О комплексе
идут продажи
Стоимость квартиры

Цены по запросу

Срок сдачи

III кв. 2017 — III кв. 2018

Стадия

проект — возведение стен

Застройщик/девелопер

ФинТрастОйл

Класс жилья

комфорт класс

Тип дома

монолитный

Количество этажей

9

Высота потолков

2.8

Всего квартир

108 — 179

Квартиры
Площадь, м²
Стоимость, руб.
1-комнатные
41 м²
млн
2-комнатные
45.8 м²
млн
3-комнатные
84.7 - 85 м²
млн
Подобрать квартиру

Расположение

Населенный пункт
Адрес
Московская обл, Орехово-Зуево го, Орехово-Зуево, Бондаренко ул
Метро

Новокосино  более 1 часа транспортом  Показать маршрут

О комплексе ЖК Морозовский квартал

Жилой комплекс Морозовский квартал возводится в городе Орехово-Зуево Московской области. Согласно проектным декларациям, в состав комплекса войдёт четыре девятиэтажных здания.

Застройщиком проекта выступила компания ФинТрастОйл.

Источник фотографий и описания объекта: официальный сайт ЖК Морозовский квартал, г. Орехово-Зуево.

Проектная декларация на сайте ЗАО ФинТрастОйл и наш.дом.рф

Фирменное наименование застройщика: morozovkvartal.ru

Информация о жилом комплексе Морозовский квартал, размещенная на данной странице, не является рекламой.

Информация по состоянию на 03.11.2017

Где ищете новостройку? Подберем варианты от 4 млн рублей! Ипотека от 6%.
Вопрос  1  из  5
Выберите вариант!
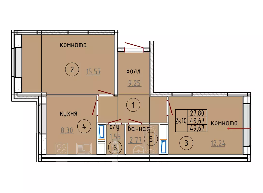
Планировки
Ход строительства
Еще фото

ЖК Морозовский квартал на карте

Все спецпредложения
Остались вопросы? Мы расскажем больше о ЖК Морозовский квартал
Оставьте телефон, и мы вам перезвоним

Имя

Телефон

Нажимая кнопку "Узнать об акциях", я даю согласие на обработку своих персональных данных в соответствии с Политикой конфиденциальности
Отзывы о ЖК Морозовский квартал
4

По данному ЖК еще никто не оставил отзывов.

Будьте первым.

Оставить отзыв

Оценка

Нажимая кнопку “Отправить”, Вы даете согласие на обработку персональных данных.

*Поля обязательные для заполнения.

ФинТрастОйл

Оставьте телефон, и мы вам перезвоним

Не удалось отправить запрос, попробуйте ещё раз

Спасибо!

Мы перезвоним Вам
в ближайшее время.

Мы Вам перезвоним.

Нажимая кнопку «Позвоните мне», вы подтверждаете свое согласие с Политикой конфиденциальности